Description
Discover Your Modern 4 Bedroom Cottage House Plan: The ACB-021 Craftsman-Style Cottage House
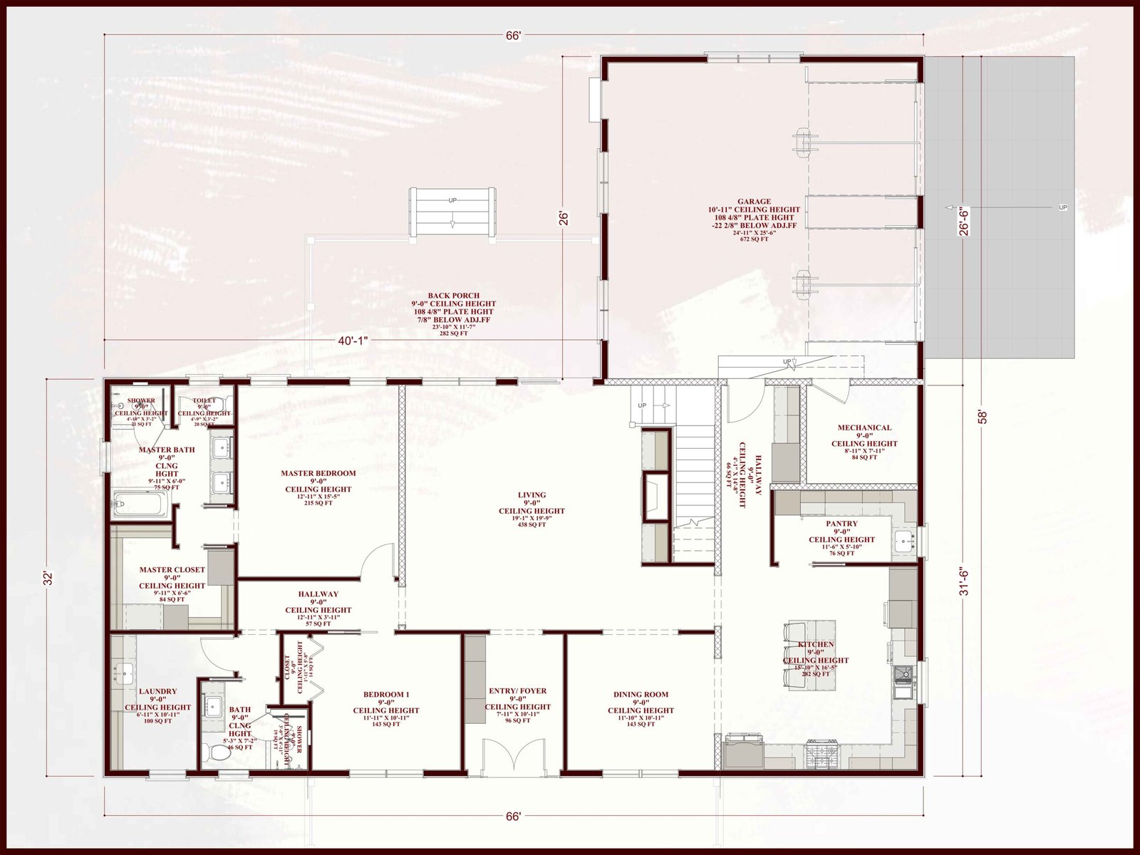
Step into the charming world of the ACB-021 Cottage House, a stunning 2-story Craftsman-style retreat designed for modern living. This floor plan seamlessly blends classic curb appeal with a spacious, functional layout, making it the perfect blueprint for your new home. Whether you’re a homeowner, a DIY builder, or a contractor, this plan offers everything you need to bring your vision to life.
Key Features That Make This Home Special:
- Spacious 4-Bedroom Layout: A true family home with a master suite conveniently located on the main floor for ultimate accessibility and privacy. Three additional bedrooms are on the second floor.
- 3 Full Bathrooms: Thoughtfully distributed across both floors to ensure comfort and convenience for everyone.
- Open-Concept Living: The first floor features a wide, open living space that flows effortlessly from the kitchen and dining areas, perfect for entertaining or relaxing with family.
- Versatile Bonus Room: The second floor includes a 292 sq. ft. bonus room, ready to be a home office, a kids’ playroom, or a cozy extra bedroom.
- Attached 2-Car Garage: Provides secure parking and ample storage space for tools, sports equipment, and more.
- Charming Outdoor Spaces: A generous 303 sq. ft. covered front porch adds to the home’s curb appeal, while a 292 sq. ft. back porch offers a private outdoor retreat.
Detailed Specifications About This 4 Bedroom Cottage House Plan:
- Heated Square Footage: 3094 sq. ft. (First Floor: 2112 sq. ft., Second Floor: 982 sq. ft.)
- Unheated Square Footage: 2233 sq. ft.
- Foundation Options: Choose between Slab, Crawlspace, or Basement to best suit your building site and needs.
- Overall Dimensions: 66′ wide x 58′ deep
- Ceiling Heights: A spacious 9-foot ceiling on the first floor and a comfortable 8-foot ceiling on the second floor.
Your Blueprint for Success: What’s Included?
We offer two comprehensive packages designed to meet every builder’s needs.
The Signature Plan ($599)
This package is your all-in-one digital blueprint, providing everything you need to start building. It includes detailed floor plans, foundation plans, exterior elevations, roof framing plans, and a materials list. You’ll also get access to 40+ rendered 3D images to visualize your future home.
The Elite Plan
Ready to build with confidence? The Elite Plan includes everything from the Signature Plan, plus crucial additions to help you navigate the building process seamlessly. This includes Local Code Modification to meet your specific building codes, an Energy Code Compliance Check, and Utility & Terrain Integration to adapt the plan to your lot’s unique features. You’ll also receive dedicated, ongoing support from our design team.
Ready to start building? With our streamlined process, you’ll receive a draft plan for review. You can request up to 2 minor modifications at no extra cost, ensuring your floor plan is perfect before the final version is delivered in just 3–5 business days.
Purchase your ACB-021 Cottage House plan today and take the first step toward building the home you’ve always wanted.

Lauren (verified buyer) –
I absolutely fell in love with this plan! After years of planning our new home in Georgia, we finally made it happen—and moved in! This design was everything my husband and I had been searching for. It fit our lifestyle perfectly and truly feels like home