Description
Luxury Cottage House Plan (ACB-030): 5-Bed, 4-Bath Two-Story with Pool & 2-Car Garage
Product Short Description
Experience resort-style living with this stunning 5-bedroom, 4-bath cottage house plan. Spanning 3,747 sq ft, this two-story design (Plan ACB-030) features a main-floor master suite, an open-concept living area, and a bonus room. The true highlight is the luxurious outdoor space, complete with a swimming pool, covered porches, and an outdoor kitchen area, perfect for entertaining. A 2-car garage completes this perfect blend of classic charm and modern luxury.
Step into a home that feels like a permanent vacation. Our 5-Bedroom Cottage House Plan (ACB-030) is a masterfully designed two-story home that blends classic cottage architecture with the luxury of a private resort.
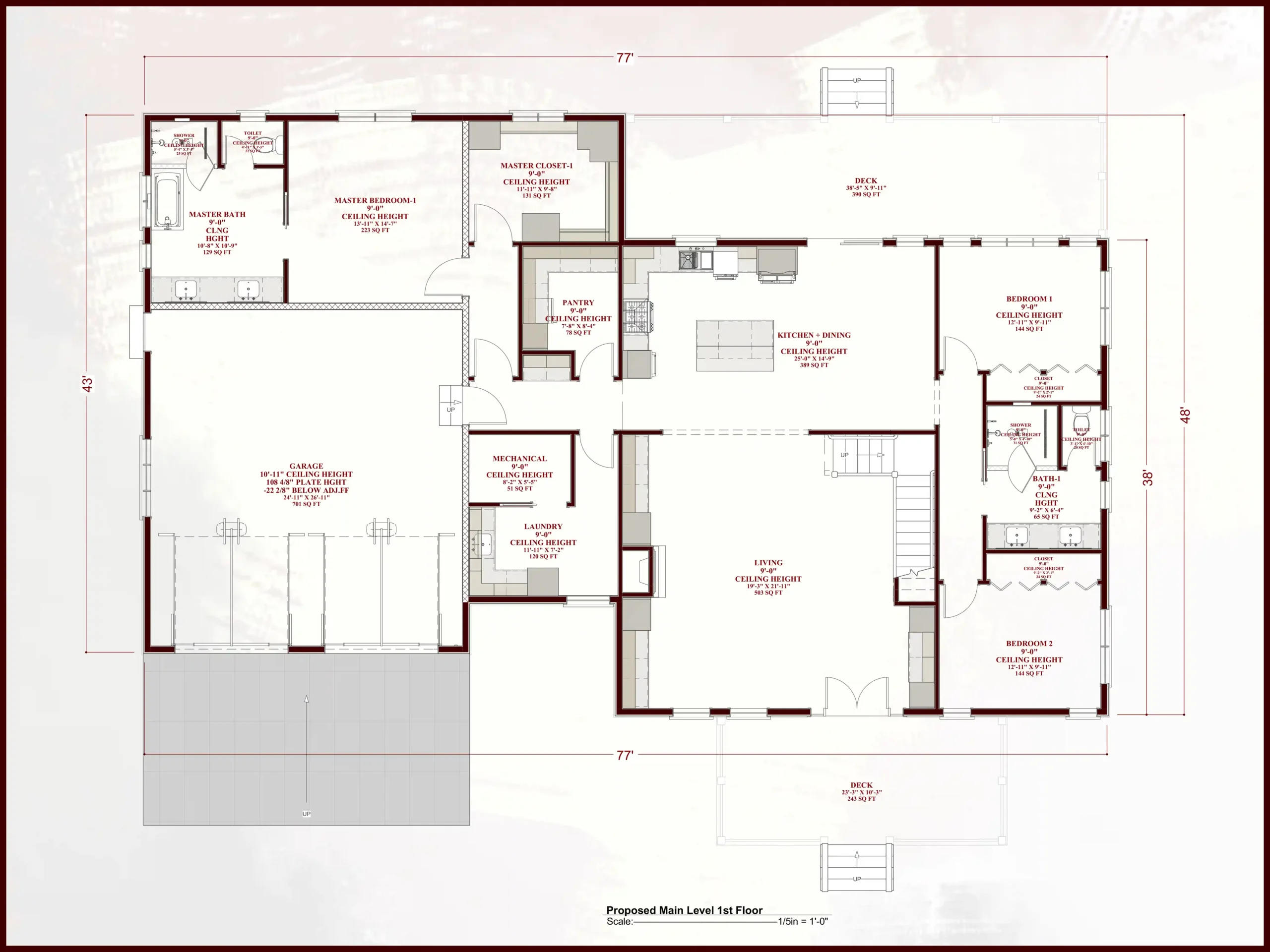
First Floor:
The main level is the heart of the home, centered around a spacious, open-concept living, dining, and kitchen area. The gourmet kitchen features a large island and a generous walk-in pantry (78 sq ft). This floor hosts three bedrooms, including the luxurious Master Suite, which boasts a private master bath and walk-in closet. You’ll also find a convenient laundry room, another full bathroom, and direct access to the 701 sq ft 2-car garage.
Second Floor:
Ascend to the second floor to find a versatile 453 sq ft bonus living area, perfect for a media room, home office, or family den. This level also includes two additional spacious bedrooms and two full bathrooms, providing privacy and comfort for family or guests.
Outdoor Living:
This home truly shines with its 633 sq ft of dedicated outdoor living space. A welcoming front porch (243 sq ft) sets the charming cottage tone, while the expansive back porch (390 sq ft) and deck area are designed for ultimate entertainment. Overlooking a beautiful swimming pool and an outdoor kitchen, it’s the perfect setting for relaxing and hosting gatherings.
Key Features
- 1. Spacious 2-Story Layout: 3,747 Sq Ft of Heated Living Space
- 2. Bedrooms & Bathrooms: 5 Bedrooms & 4 Full Bathrooms
- 3. Luxury Outdoor Living: Features a Pool, Outdoor Kitchen, and extensive Porch/Deck Areas
- 4. Dual Garage Bays: Attached 2-Car Garage (701 sq ft)
- 5. Open-Concept Main Floor: Seamless flow between the Living, Dining, and Kitchen areas.
- 6. Multiple Foundation Options: Choose from Crawlspace, Slab, or Basement.
- 7. Classic Cottage Design: Timeless cottage aesthetics with modern, luxury touches.
Detailed Specifications
- HEATED SQ FT: 3,747
- First Floor: 2,372 Sq Ft
- Second Floor: 1,375 Sq Ft
- Bonus Room: 453 Sq Ft
- UNHEATED SQ FT: 2,286
- Garage: 701 Sq Ft
- PORCH & PATIO SQ FT: 633
- Front Porch: 243 Sq Ft
- Back Porch: 390 Sq Ft
- BEDS & BATHS
- Bedrooms: 5
- Full Baths: 4
- Half Baths: 0
- DIMENSIONS & DETAILS
- Width: 77′
- Depth: 48′
- Height: 29′-9″
- Floors: 2
- Garage Size: 2 Cars
- Main Roof Pitch: 11:12
- FRAMING & CONSTRUCTION
- Exterior Framing: 2×6 Wood
- Interior Framing: 2×4 Wood
- Foundation: Crawlspace, Monolithic Slab, or Basement (Selectable)
- CEILING HEIGHTS
- First Floor: 9 feet
- Second Floor: 8 feet
What’s Included In Your Package
Choose the package that best fits your building needs.
In The Signature Plan (Standard)
- ✅ General Notes for builder reference
- ✅ Floor Plan with dimensions
- ✅ Foundation Plan (You Can Select)
- ✅ Window & Door Schedules
- ✅ Exterior Elevations (Front, Rear, Left, Right)
- ✅ Roof Plan & Roof Framing Plan
- ✅ Wall Framing Plan
- ✅ Cross Sections & Construction Details
- ✅ Kitchen Plan & Elevations
- ✅ Cabinet Schedule with Details
- ✅ Laundry & Closet Elevations
- ✅ Proposed Plumbing & HVAC Layout
- ✅ Electrical Plan
- ✅ 40+ Rendered 3D Images
- ✅ CAD FILE
- ✅ Material List
- ✅ Estimated Cost to Build (based on U.S. average rates)
- ✅ Mirror/reverse the plan (You Can Select)
- ✅ The standard plan is in Imperial units (ft/in). Metric version (in millimeters) available upon request.
- ✅ Up to 2 minor modifications (e.g., small room resizing, door/window relocation, swap two room labels)
In The Elite Plan
- ✅ Everything from ‘The Signature Plan’ PLUS:
- ✅ Local Code Modification [We can adjust the plan to meet your local building code requirements]
- ✅ Energy Code Compliance – REScheck
- ✅ Utility & Terrain Integration [Adapts the house plan to your lot’s real slope, elevation, and utility layout]
- ✅ Custom Landscape Design
- ✅ Dedicated Consultation [We’re by your side throughout your home-building journey]
Plan Review & Customization
Our process is designed to be simple, efficient, and tailored to your needs.
- Tell Us About Your Modifications: Once you purchase your dream home plan, you’ll instantly receive the floor plan PDF. Review it carefully and note any adjustments you’d like. Then, simply fill out our modification form or email us with the details.
- Our Team Reviews Your Request: After you submit your request, our design team will carefully review your changes. We’ll provide you with all the details by email, including the estimated timeframe needed to complete your modifications.
- Modification Pricing: Every plan comes with 2-3 rounds of revisions at no extra cost, giving you flexibility and peace of mind. If additional changes are required, we’ll give you a clear, upfront quote before moving forward.
- Receive Your Modified Plans: Once your modifications are complete, your updated plans will be sent to you in the format you purchased. Timelines vary depending on the complexity of changes, but most projects are completed within 3-5 business days. Your final modified floor plan will be available in your My Account dashboard, and a copy will also be sent directly to your email.
License Details
Please select the license that matches your intended use.
- Single Build License
- ✅ For individuals building a single home
- ✅ Non-transferable, non-commercial use
- ✅ Ideal for homeowners or DIY builders
- Builder Pro License
- ✅ For contractors or small developers
- ✅ Covers multiple builds (1-5 home builds) for client use
- ✅ Great for boutique homebuilders or firms
- Commercial License
- ✅ For high-volume developers or commercial firms
- ✅ Covers unlimited builds for client use
- ✅ Tailored for architects, real estate companies

Reviews
There are no reviews yet