Description
ACB-027 | Charming 3 Bedroom Cottage House Plan with 2 Car Garage
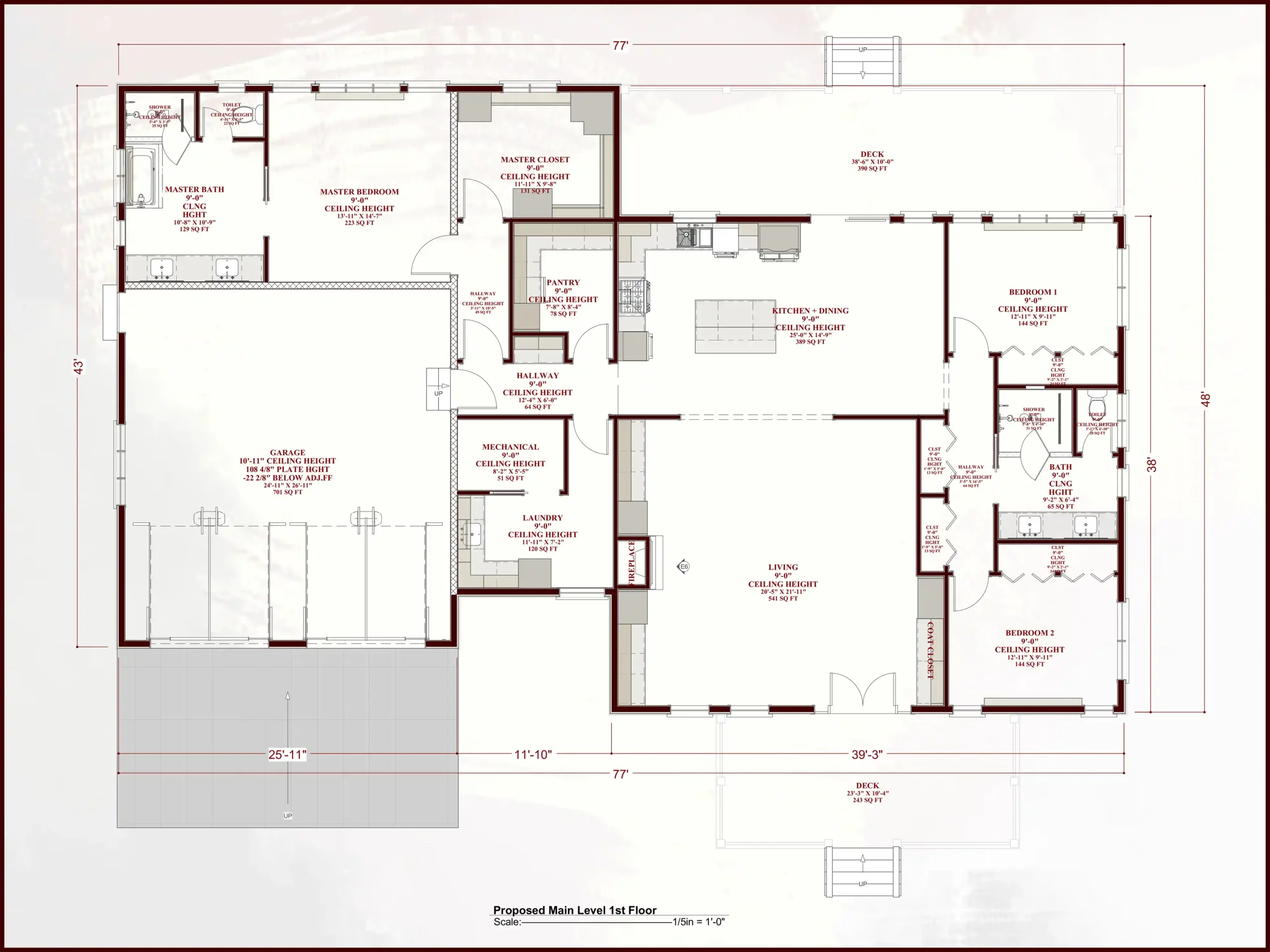
Discover the perfect blend of rustic charm and modern functionality with the ACB-027 Cottage House plan. This stunning one-story home offers a spacious, open-concept layout designed for comfortable living and seamless entertaining. With 2,373 heated square feet, this plan is perfect for homeowners looking to build a stylish and efficient home that feels both grand and cozy.
Key Features of the ACB-027 Cottage House
- Spacious & Functional Layout: The open-concept floor plan seamlessly connects the living, dining, and kitchen areas, making it an ideal space for family gatherings and daily life.
- 3 Full Bathrooms: Enjoy the convenience of three full bathrooms, including a luxurious master bath with a large master suite and walk-in closet. All bathrooms feature 9-foot ceilings for an airy, elegant feel.
- 2-Car Garage: The oversized 701 sq ft garage provides ample space for two cars, storage, and direct access into the home.
- Expansive Outdoor Living: A generous 633 sq ft deck provides a large space for outdoor entertaining, complete with a pool area perfect for BBQs and relaxing evenings.
- Energy-Efficient Design: Built with energy-efficient 2×6 exterior and 2×4 interior wood framing, this home ensures strong insulation and long-lasting durability.
- Stylish Farmhouse Exterior: The home features a bold architectural character with a 10:12 roof pitch, blending modern farmhouse aesthetics with classic cottage style.
Your Digital Package Options
Our house plans are available in two convenient digital packages to suit your specific needs.
The Signature Plan
This package provides everything you need to start building, including:
- Comprehensive Blueprints: Detailed floor plans with dimensions, foundation plans, exterior elevations, roof plans, and more.
- Framing & Structural Details: Wall framing plans, cross sections, and construction details to guide your build.
- Interior & Exterior Schematics: Cabinet, laundry, and electrical plans, plus proposed plumbing and HVAC layouts.
- Visualization & Estimation: Over 40 rendered 3D images, a CAD file, and an estimated cost-to-build based on U.S. average rates.
- Flexibility: Includes up to two minor modifications at no extra cost, such as resizing rooms or relocating doors and windows.
The Elite Plan
The Elite Plan includes everything from the Signature Plan, plus enhanced customization services:
- Local Code Compliance: We’ll help adapt the plan to meet your local building code requirements.
- Utility & Terrain Integration: Our team will help adapt the house plan to your specific lot’s slope and utility layout.
- Custom Design: Receive a custom landscape design tailored to your vision.
- Personalized Support: We’re with you every step of the way, providing dedicated consultation and thoughtful revisions to ensure the final design aligns perfectly with your vision.
Streamlined Customization & Delivery Process
Your dream home plan is just a few simple steps away!
- Tell Us Your Modifications: After purchasing, review the PDF floor plan and fill out our easy modification form to submit any changes.
- Our Team Reviews Your Request: Our design team will review your request and provide a detailed email with a timeframe for completion.
- Modification Pricing: Every plan includes 2-3 rounds of revisions at no extra cost, giving you flexibility and peace of mind.
- Receive Your Modified Plans: Your updated plans will be sent to you in the format you purchased within 3-5 business days after confirmation, and will also be available in your My Account dashboard.
Ready to build the home of your dreams? Choose your plan, foundation type, and license to get started today!

Reviews
There are no reviews yet