Description
Discover the perfect blend of timeless charm and modern luxury with our 5-Bedroom 2-Story Cottage House Floor Plan, the ACB-028. Designed for spacious family living and elegant entertaining, this modern farmhouse-inspired cottage presents a vision of comfort and style. From its striking curb appeal to its thoughtfully designed open-concept interior, this home plan provides everything you need to build the home you’ve always dreamed of. With dual master suites (one on each floor) and expansive outdoor living spaces, this plan is the ultimate sanctuary for families and builders alike.
Key Plan Specifications:
- Plan Number: ACB-028
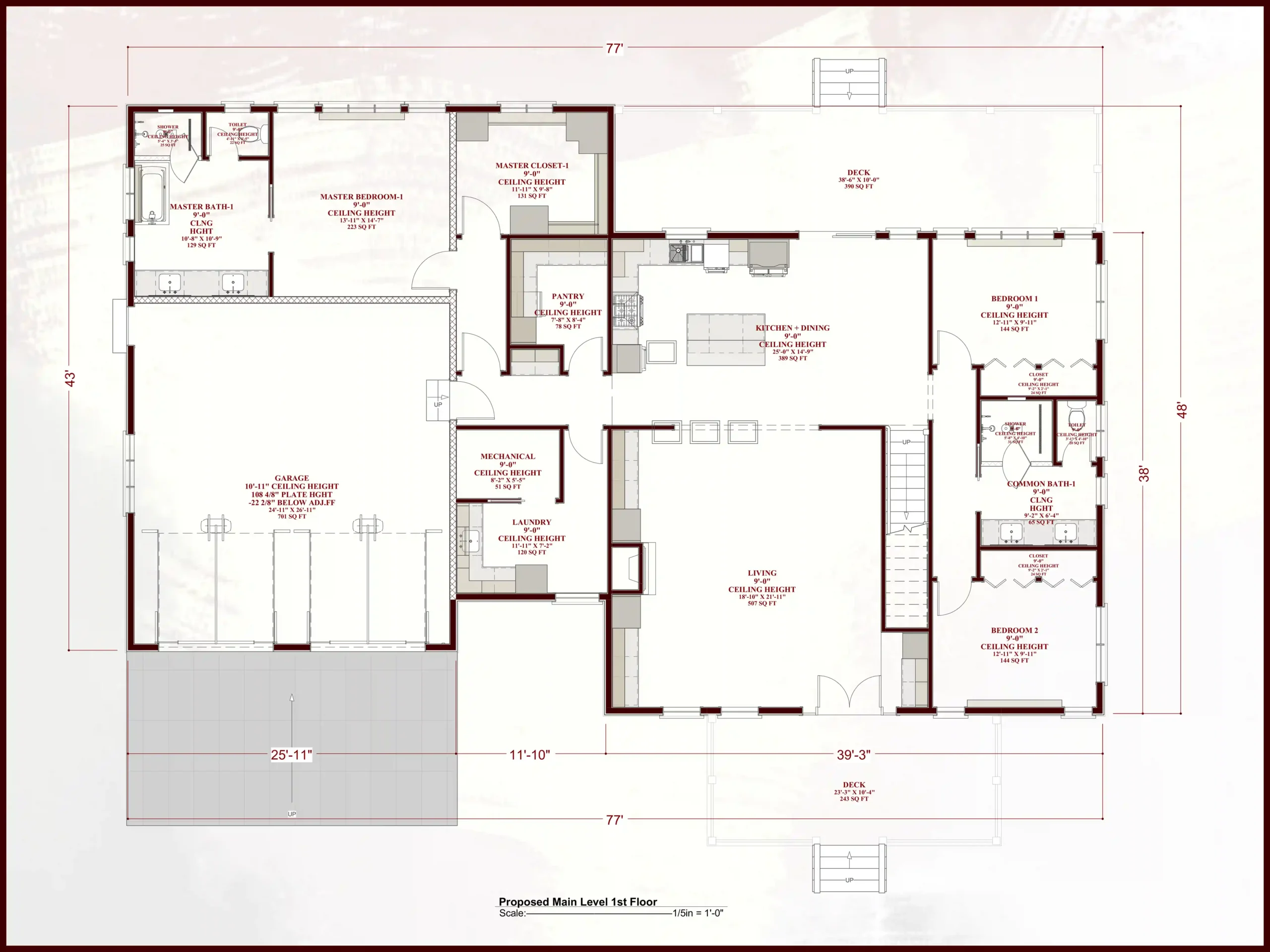
- Total Heated Area: 3,708 sq. ft.
- First Floor: 2,373 sq. ft.
- Second Floor: 1,335 sq. ft.
- Bedrooms: 5
- Bathrooms: 5 Full Baths
- Master Suites: 2 (One on Main Floor, One on Second Floor)
- Stories: 2
- Garage: 2-Car Side-Entry (701 sq. ft.)
- Dimensions: 77′ Width x 48′ Depth
- Total Height: 29′ 9″
- Ceiling Heights: 9′ on the first floor, 8′ on the second floor
- Foundation: Crawlspace (other options available)
- Exterior Framing: 2×6 Wood Framing for enhanced durability and energy efficiency
Detailed Home Plan Features:
A Grand & Welcoming Layout Step inside this magnificent cottage and be greeted by a sprawling open-concept living area. With soaring 9-foot ceilings on the main level, the great room, dining area, and gourmet kitchen flow together seamlessly, creating an inviting atmosphere for daily life and hosting guests.
Dual Luxury Master Suites This unique 5-bedroom house plan offers unparalleled comfort with two complete master suites.
- Main-Level Master Suite: A private and accessible retreat featuring a spacious bedroom, a large walk-in closet, and a luxurious en-suite bathroom.
- Second-Floor Master Suite: Ideal for multi-generational families, guests, or as a private owner’s escape, this suite also includes a private bath and walk-in closet.
Spacious & Functional Spaces
- Gourmet Kitchen: The heart of the home features an open-style layout with ample space for an island and a large 78 sq. ft. walk-in pantry.
- Outdoor Oasis: Seamlessly connect your indoor and outdoor living with 633 sq. ft. of porch and patio space. This plan includes an elevated pool (776 sq. ft.) and hot tub area, perfect for relaxation and entertainment.
- Ample Storage: A spacious 2-car garage provides 701 sq. ft. of room for vehicles and storage, with a convenient side-entry design.
- Bonus Room: A 338 sq. ft. bonus room offers flexible space for a home office, media room, or play area.
What’s Included In Your “The Signature Plan” Digital Package?
When you purchase this 2-story cottage house plan, you receive a comprehensive set of builder-ready documents. Our Signature Plan includes everything you need to get started:
- Detailed Floor Plans: Fully dimensioned plans for both stories.
- Foundation Plan: Your choice of foundation (e.g., Crawlspace, Slab, Basement).
- Exterior Elevations: All four sides of the home, showing materials and finishes.
- Roof Plan & Framing: A detailed layout of the roof structure with an 11:12 main pitch.
- Cross Sections & Construction Details: Critical details for a strong and durable build.
- Electrical & HVAC Layouts: Suggested layouts for modern convenience.
- CAD File: The source file for your builder and engineer to make precise adjustments.
- Material List: A comprehensive list to help you accurately estimate costs.
- 40+ Photorealistic 3D Renderings: Visualize your dream home inside and out.
- Minor Modifications: We include up to 2 minor modifications to ensure the plan is perfect for you.
Need more? Ask about our Elite Plan for local code compliance, site integration, and custom landscape design!
Easy Customization & Fast Delivery
Your vision is our blueprint. We offer a streamlined 4-step process to modify this plan to perfectly suit your property and preferences. Most modification requests, including 2-3 rounds of revisions at no extra cost, are completed within 3-5 business days.
Choose Your License:
Whether you are a homeowner building your forever home, a boutique builder, or a commercial developer, we have a license to fit your needs:
- Single Build License: Perfect for individuals and DIY builders.
- Builder Pro License: For contractors building 1-5 homes for clients.
- Commercial License: For developers with unlimited build rights.
Purchase the ACB-028 plan today and take the first step toward building the stunning 5-bedroom cottage home of your dreams!

Reviews
There are no reviews yet