Introduction: Finding the Perfect Balance of Charm and Space
Are you searching for a home that feels like a cozy retreat but offers the luxury of a sprawling estate? Finding a 3-bedroom cottage house plan that doesn’t feel “cramped” is a common challenge for many homeowners.
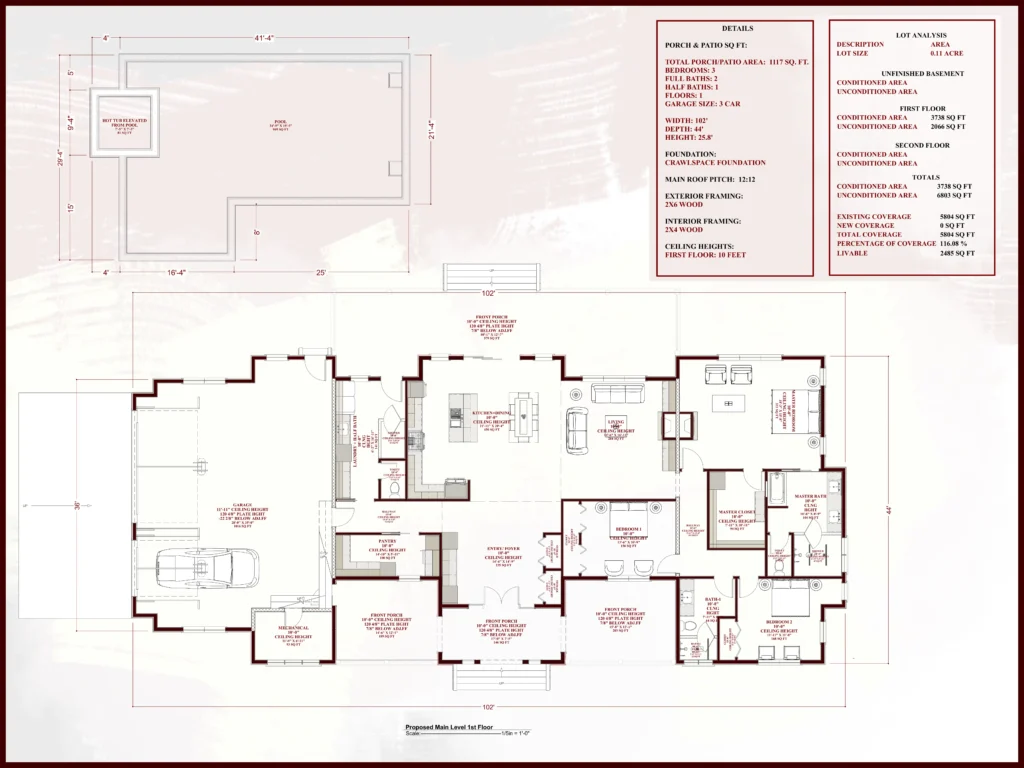
Most traditional cottages are small, but the modern lifestyle demands more: a home office, a chef’s kitchen, and room for three cars. At Arch C Studio, we’ve designed the perfect solution. Meet our newest ModernCottage House Cottage—a 3,738 sq. ft. masterpiece that combines rustic aesthetics with high-end functionality.



1. Open-Concept Living at its Finest
The heart of any modern home is the living area. This plan features a wide-open layout where the foyer leads directly into a massive living space.
- The Kitchen: Designed for foodies, the kitchen features a massive island and is seamlessly connected to the dining area.
- The Flow: Whether you are hosting a holiday dinner or watching the kids while cooking, this “no-walls” approach keeps the family connected.



2. A Master Suite Designed for Privacy
One of the most requested features in a house plan for sale is a split-bedroom layout. In this design:
- The Master Suite is a private sanctuary with a walk-in closet and a luxury bathroom.
- The two additional bedrooms are located on the opposite side of the house, ensuring peace and quiet for parents and guests alike.



3. More Than Just a House: The 3-Car Garage and Pool
What sets this cottage plan apart from others you’ll find online is the utility and outdoor living.
- The 3-Car Garage: Rare for a cottage style, this provides enough room for your daily drivers plus a classic car or a workshop.
- The Backyard Oasis: With over 1,100 square feet of porch and deck space, plus a stunning integrated pool, your home will become the go-to spot for summer staycations.

4. Technical Specs for the Savvy Builder
When you buy a floor plan online, you need technical flexibility. This plan is designed with a 12:12 roof pitch for that iconic high-peak cottage look and offers three foundation options to suit any terrain:
- Crawlspace
- Monolithic Slab
- Basement (Perfect for those wanting even more storage or a future gym!)
📏 Plan Dimensions at a Glance:
- Width: 102′ | Depth: 44′
- Heated Square Footage: 3,738 Sq. Ft.
- Bedrooms: 3 | Bathrooms: 2.5
- Ceiling Height: 10 Feet throughout.

Why Buy Your Floor Plan from Arch C Studio?
Buying a floor plan is the first step toward building your dream life. Our plans are meticulously detailed, ensuring your contractor has everything they need to bring this vision to life. This specific Modern Cottage House Cottage is perfect for wide lots and homeowners who refuse to compromise on luxury.
Ready to start building? Click Here to View the Full Listing and Download Your Plans Today!
